- Woonoppervlakte
- Circa 148 m²
- Perceeloppervlakte
- Circa 118 m²
- Bouwjaar
- Gebouwd in 2019
- Aantal kamers
- 5 kamers (4 slaapkamers)
Begane grond
Via de entree met moderne meterkast en toilet bereikt u de ruime, lichte woonkamer met schuifpui naar de zonnige achtertuin. De tuin is onderhoudsvriendelijk aangelegd en voorzien van een royaal terras, houten berging met elektra en een achterom. Aan de voorzijde bevindt zich de luxe open keuken, uitgerust met alle benodigde inbouwapparatuur. De ramen tot aan de vloer zorgen voor extra daglicht en een fijne verbinding met buiten.
De begane grond is afgewerkt met een strakke gietvloer met vloerverwarming, wat zorgt voor een warme en aangename sfeer.
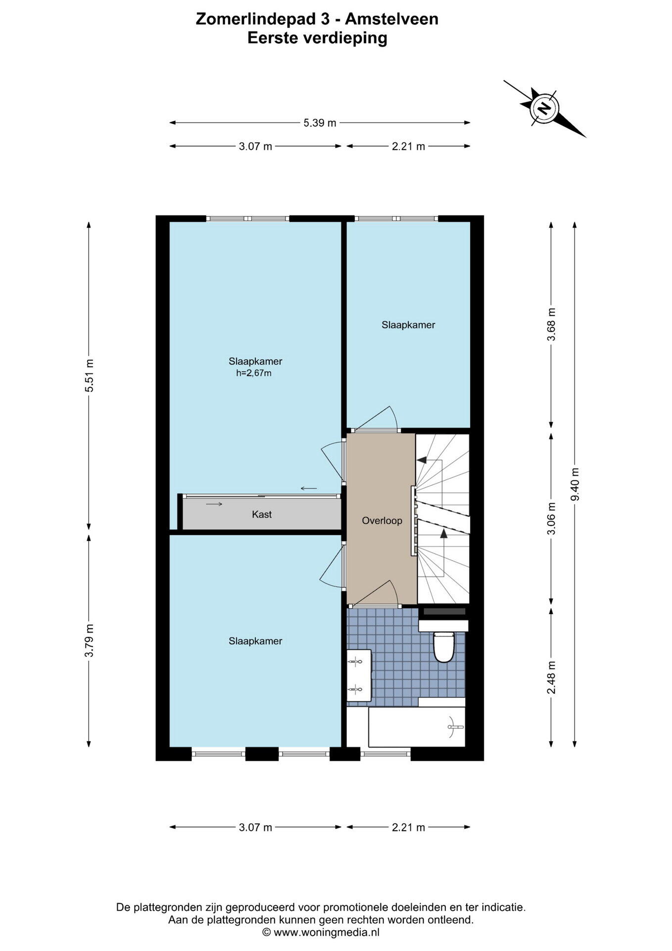
Eerste verdieping
De overloop biedt toegang tot drie goed bemeten slaapkamers en een luxe badkamer. Ook hier loopt de gietvloer met vloerverwarming door in alle vertrekken. De badkamer is volledig uitgerust met een ligbad, toilet en dubbele wastafel met spiegel.
Tweede verdieping
Op de bovenste verdieping vindt u een ruime vierde slaapkamer, voorzien van een brede dakkapel, bergruimte en de opstelplaats voor wasmachine en droger. De verdieping beschikt over een tweede badkamer voorzien van een douche, toilet en wastafel. Ook bevindt zich hier de afgesloten WTW-installatie. Desgewenst kan deze verdieping nog anders worden ingedeeld om extra (slaap)kamers te creëren. Bekijk de alternatieve plattegrond voor een impressie van de indeling.
Duurzaamheid
De woning is in 2019 gebouwd en voldoet aan de hoogste duurzaamheidsnormen van deze tijd. Met energielabel A+++ profiteert u van optimaal wooncomfort.
De woning is uitgerust met een warmtepomp voor vloerverwarming en -koeling op alle verdiepingen, 18 zonnepanelen, HR-glas, een WTW-installatie en uitstekende isolatie. Kortom: volledig toekomstbestendig en uiterst comfortabel.
Locatie
De woning is gelegen in de populaire en kindvriendelijke wijk Keizer Karelpark. Op loopafstand bevinden zich de Van der Hooplaan en Lindelaan met meerdere supermarkten, evenals recreatiegebied De Poel en de gezellige oude dorpskern van Amstelveen met diverse bars en restaurants.
Voor uitgebreid winkelen kunt u terecht in het Stadshart Amstelveen, een vijfsterren winkelcentrum met een groot aanbod aan winkels, horecagelegenheden, een theater en bioscoop.
De snelweg A9, met directe aansluiting op de A10, zorgt voor een uitstekende bereikbaarheid per auto. Daarnaast bevinden zich op loopafstand meerdere bushaltes met directe verbindingen naar Amsterdam Centraal Station, Schiphol, Amsterdam Zuid-Oost en de Amsterdam Arena.
Bijzonderheden
- Woonoppervlakte ca. 148 m²
- Mogelijkheid tot extra slaapkamer op de tweede verdieping
- Perceeloppervlakte 118 m²
- Bouwjaar 2019
- Energielabel A+++
- Mechanische ventilatie
- Volledig voorzien van vloer koel- en verwarming
- Oplevering in overleg, kan snel
Meetinstructie
Het verkochte is gemeten met gebruikmaking van de Meetinstructie, gebaseerd op de normen zoals vastgelegd in NEN 2580. De Meetinstructie is bedoeld om een eenduidige manier van meten toe te passen voor het geven van een indicatie van de gebruiksoppervlakte. De Meetinstructie sluit verschillen in meetuitkomsten niet volledig uit door bijvoorbeeld interpretatieverschillen, afrondingen en beperkingen bij het uitvoeren van een meting.
De woning is gemeten door een betrouwbaar en professioneel bedrijf. Koper vrijwaart de medewerkers van Voorma & Millenaar Makelaars o.g. en de verkoper voor eventuele afwijkingen in de opgegeven maten. Koper verklaart in de gelegenheid te zijn gesteld om het verkochte zelf te (laten) meten conform NEN 2580.
*** This Property is listed by an MVA Certified Expat Broker ***
Do you dream of a home where luxury, comfort, and energy-efficient living come together perfectly? Then this charming and extremely sustainable 5-room family house built in 2019 (approx. 148 m²) is exactly what you are looking for. The property is beautifully situated along a wide green space with decorative water features and boasts a sunny south-facing backyard – a wonderful spot to quietly enjoy the outdoors. With two bathrooms and an A+++ energy label, you benefit from optimal living comfort and low utility costs.
Ground floor
Through the entrance hall with modern fuse box and toilet, you enter the spacious, bright living room with sliding doors to the sunny back garden. The garden is low-maintenance and offers a large terrace, wooden storage shed with electricity, and a back entrance.
At the front is the luxurious open kitchen, equipped with all necessary built-in appliances. The floor-to-ceiling windows provide plenty of natural light and a seamless connection to the outdoors.
The ground floor is finished with a sleek cast floor and underfloor heating, creating a warm and inviting atmosphere.
First floor
The landing provides access to three well-sized bedrooms and a luxurious bathroom. The cast floor with underfloor heating continues through all rooms. The bathroom is fully equipped with a bathtub, toilet, and double washbasin with mirror.
Second floor
The top floor offers a spacious fourth bedroom featuring a wide dormer window, storage space, and connections for a washer and dryer. This floor also includes a second bathroom with shower, toilet, and washbasin. The closed-off heat recovery unit (WTW system) is also located here. If desired, this level can be reconfigured to create additional (bed)rooms. View the alternative floor plan for an impression of the layout
Sustainability
Built in 2019, this home meets the highest sustainability standards of today. With energy label A+++, you benefit from maximum comfort and minimal energy costs.
The property features a heat pump providing underfloor heating and cooling on all levels, 18 solar panels, HR- glazing, a heat recovery system (WTW) and excellent insulation throughout. In short: future-proof, comfortable, and ready to move in.
Location
The home is located in the popular and family-friendly Keizer Karelpark neighbourhood. Within walking distance you will find Van der Hooplaan and Lindelaan, offering several supermarkets, as well as the De Poel recreational area and the charming old village centre of Amstelveen, with its inviting bars and restaurants.
For extensive shopping, visit Stadshart Amstelveen, a five-star shopping centre offering a wide range of stores, restaurants, cafés, a theatre, and a cinema.
The A9 motorway, with direct connection to the A10 ring road, provides excellent access by car. Several bus stops are also within walking distance, offering direct connections to Amsterdam Central Station, Schiphol Airport, Amsterdam Southeast, and the Amsterdam Arena.
Key features
- Living area approx. 148 m²
- Possibility of an additional bedroom on the second floor
- Plot size 118 m²
- Built in 2019
- Energy label A+++
- Mechanical ventilation
- Fully equipped with underfloor heating and cooling
- Completion in consultation, can be quick
Measurement instruction
The property has been measured in accordance with the Measurement Instruction, based on the standards laid down in NEN 2580. The Measurement Instruction is intended to provide a uniform method for indicating usable floor area. Differences in measurement results may still occur due to interpretation variations, rounding, or measurement limitations.
The property was measured by a reliable and professional company. The buyer indemnifies the staff of Voorma & Millenaar Real Estate Agents and the seller against any deviations in the stated measurements. The buyer acknowledges having been given the opportunity to measure the property themselves (or have it measured) in accordance with NEN 2580.
Overdracht
- Vraagprijs
- € 1.195.000 k.k.
- Status
- Beschikbaar
- Aanvaarding
- In overleg
Bouw
- Object type
- Eengezinswoning, tussenwoning
- Soort bouw
- Bestaande bouw
- Bouwjaar
- 2019
- Soort dak
- Zadeldak
Oppervlakte en inhoud
- Woonoppervlakte
- 148 m²
- Perceeloppervlakte
- 118 m²
- Inhoud
- 620 m³
- Externe bergruimte
- 6 m²
Indeling
- Aantal kamers
- 5 kamers (4 slaapkamers)
- Aantal badkamers
- 2 badkamers
- Badkamervoorzieningen
- Ligbad, toilet, dubbele wastafel, wastafelmeubel toilet, douche, wastafel, wastafelmeubel, wasmachineaansluiting
- Aantal woonlagen
- 3 woonlagen
- Voorzieningen
- Mechanische ventilatie, tv-kabel, zonnepanelen
Energie
- Energielabel
- A+++
- Energielabel registratie
- 24-11-2025
- Isolatie
- Volledig geïsoleerd
- Verwarming
- Vloerverwarming geheel, warmtepomp, warmte terugwininstallatie
- Warm water
- Doorstroomboiler
Buitenruimte
- Ligging
- Aan water, aan rustige weg, in woonwijk
- Tuin
- Achtertuin
- Afmetingen achtertuin
- 39 m² (7 meter diep en 5.5 meter breed)
- ligging tuin
- Gelegen op het zuiden en bereikbaar via achterom
Bergruimte
- Schuur / berging
- Vrijstaande houten berging
Garage
- Soort garage
- Geen garage
Parkeergelegenheid
- Soort parkeergelegenheid
- Openbaar parkeren
Energieverbruik in Amstelveen
Energielabel deze woning
Energielabel A+++
Publicatie energielabel: 24-11-2025
Stroomverbruik per jaar
(Gemiddelde tussenwoning in Amstelveen)
Gasverbruik per jaar
(Gemiddelde tussenwoning in Amstelveen)
* Cijfers zijn afkomstig van het CBS en bedoeld als indicatie en kunnen verschillen voor deze woning
Indicatie hypotheeklasten
Eigen inleg:
Spaargeld / overwaarde
Rente:
Laagste 10-jaars rente
Laagste 10-jaars rente
2,93% - Woonfonds Groen Woonge... - NHG
3,2% - Woonfonds Groen Woongen... - 80%
Laagste 20-jaars rente
3,19% - Centraal Beheer Groen... - NHG
3,57% - Argenta Groen Hypothee... - 80%
Laagste 30-jaars rente
3,34% - Centraal Beheer Groen... - NHG
3,74% - Argenta Groen Hypothee... - 80%
Hypotheek:
Bruto maandlasten: € 0 p/m
Netto maandlasten: € 0 p/m
Hoe berekenen we dit?
Het rentepercentage is gebaseerd op de laagste 10 jaars vaste rente voor één hypotheekdeel. De vermelde rente (3.2% zonder NHG) is gecontroleerd op 14-12-2025. Deze berekening is gebaseerd op een annuïteitenhypotheek die volledig wordt afgelost, waarbij de maandlasten gedurende de gehele looptijd gelijk blijven. De werkelijke rente en netto maandlasten kunnen variëren, afhankelijk van uw persoonlijke situatie en de hypotheekverstrekker. Raadpleeg een financieel adviseur voor een nauwkeurige berekening en advies. Aan deze berekening kunnen geen rechten worden ontleend; het dient enkel als indicatie.
Documentatie
Kadastrale kaart
Leefomgeving
Plattegronden PDF
WOZ waarderapport
BAG uittreksel
Brochure
Bezoek onze website
Bezichtiging
Bod uitbrengen
Waardebepaling
Zoekopdracht
Alles downloaden
Zonnegrenzen bekijken
Inwoners in Amstelveen
Cijfers voor postcodegebied 1185
- Totaal aantal inwoners
- 11920 inwoners
- Mannen
- 47%
- Vrouwen
- 53%
Inwoners in Amstelveen
Cijfers voor postcodegebied 1185
- tot 15 jaar
- 16%
- 15 tot 25 jaar
- 9%
- 25 tot 35 jaar
- 28%
- 45 tot 65 jaar
- 24%
- 65 en ouder
- 23%
Huishoudens in Amstelveen
Cijfers voor postcodegebied 1185
- Eenpersoons zonder kinderen
- 44%
- Meerpersoons zonder kinderen
- 24%
- Huishoudens zonder kinderen
- 68%
Huishoudens in Amstelveen
Cijfers voor postcodegebied 1185
- Huishoudens met één kind
- 9%
- Huishoudens met meerdere kinderen
- 23%
- Huishoudens met kinderen
- 32%
Woningen in Amstelveen
Cijfers voor postcodegebied 1185
- Woningen voor 1945
- 6%
- Woningen tussen 1945 en 1965
- 64%
- Woningen tussen 1965 en 1975
- 5%
- Woningen tussen 1975 en 1985
- 1%
- Woningen tussen 1985 en 1995
- 11%
Woningen in Amstelveen
Cijfers voor postcodegebied 1185
- Woningen tussen 1995 en 2005
- 5%
- Woningen tussen 2005 en 2015
- 6%
- Woningen na 2015
- 3%
- Huurwoningen
- 60%
- Koopwoningen
- 40%
Overige in Amstelveen
Cijfers voor postcodegebied 1185
- Gemiddelde WOZ waarde
- € 364.000,-
- Personen onder de 65 met uitkering
- 7%
Overige in Amstelveen
Cijfers voor postcodegebied 1185
- Adressen per km²
- 2877
- Stedelijkheid (schaal 1 op 5)
- 100%
Korte feiten over Amstelveen
Amstelveen is een plaats en gemeente in de Nederlandse provincie Noord-Holland. De bebouwde kom grenst in het noorden aan de stad Amsterdam en ligt niet ver van Schiphol. De gemeente telt 95.007 inwoners en heeft een totale oppervlakte van 44,08 km², waarvan 41,13 km² land en 2,95 km² water (1 januari 2024, Bron: CBS).
Voorma & Millenaar makelaars
Indien u vragen heeft of u wilt een bezichtiging inplannen, dan kunt u gebruik maken van het formulier hiernaast. Er zal daarna op korte termijn contact met u worden opgenomen.
Amsterdamseweg 176
1182 HL, Amstelveen
020 - 641 8694 amsterdam@voormamillenaar.nl www.voormamillenaar.nlContact opnemen
Wie is Voorma & Millenaar?
Voorma & Millenaar makelaars, opgericht in 1966, is al geruime tijd een vertrouwde naam in de Amstelveense woningmarkt. Ons toegankelijke kantoor is gevestigd aan de Amsterdamseweg in Amstelveen en wordt ondersteund door een enthousiast en proactief team dat altijd voor u klaarstaat.
Onze expertise ligt in het adviseren en bemiddelen op de Amstelveense woningmarkt, evenals in de omliggende gemeenten. Bij Voorma & Millenaar staat het leveren van uitstekende service centraal, waarbij we de belangen van onze klanten vooropstellen.
Ons hele team, gevestigd aan de Amsterdamseweg, staat voor u klaar! Het bestaat uit gedreven professionals die alles op alles zetten om de beste resultaten te behalen. Dankzij deze toewijding onderscheiden we ons al jaren met ongeëvenaarde resultaten en service.
Nieuwste reviews
-
Graaf Willemlaan 62
Zeer kundig en professioneel. Niet de eerste keer dat ik gebruikmaak van hun diensten, en zeker niet de laatste!
-
Van Heuven Goedhartlaan 348
Deskundig, vriendelijk, heldere communicatie met goed advies vanuit een duidelijke visie.Zeer tevreden van begin tot eind!
-
Spurgeonlaan 146
Zeer bereikbare makelaar die altijd reageert op mails, telefoontjes en appjes. Alert op informatie geven aan mij. Heel prettig. Zowel op kantoor als bij bezichtigingen, heel heel p...